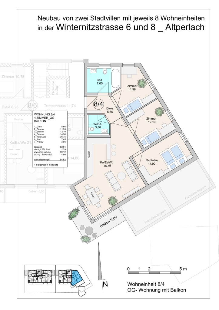
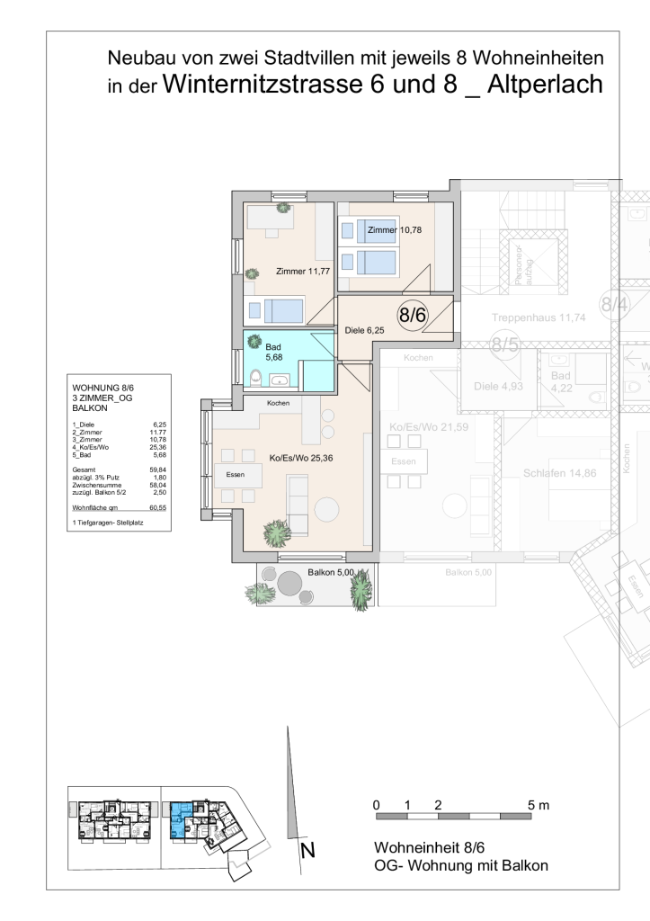
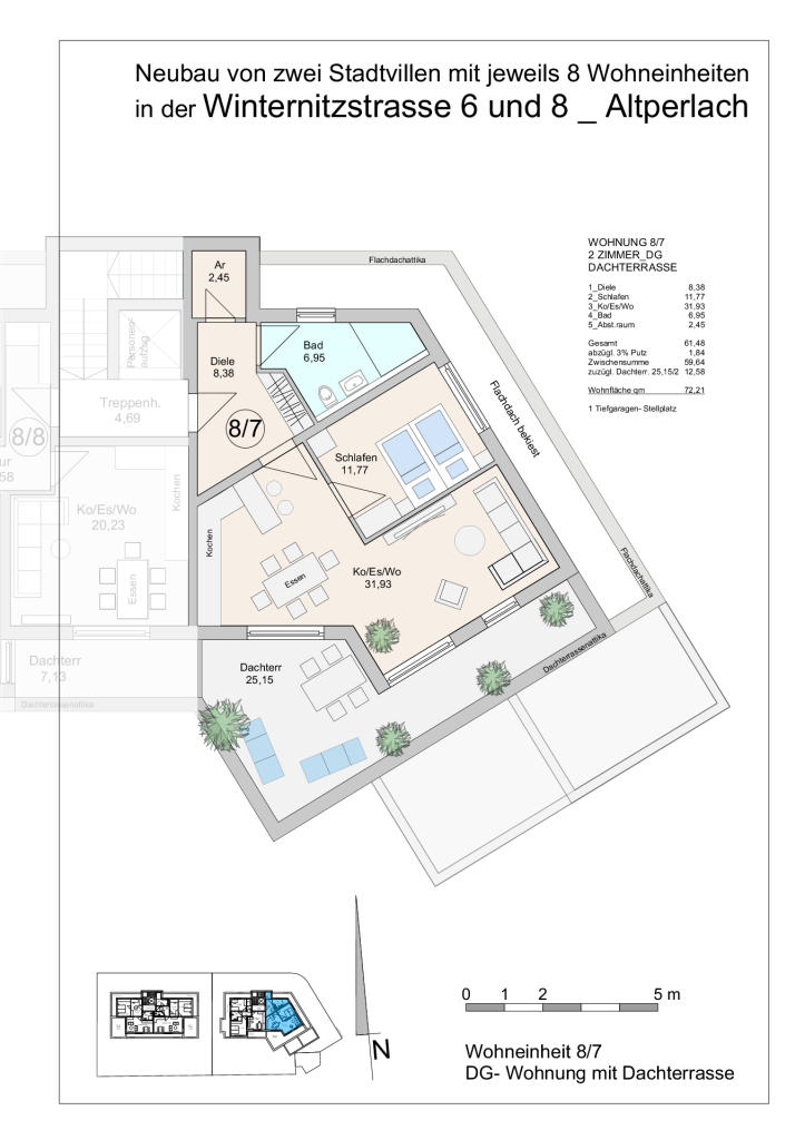
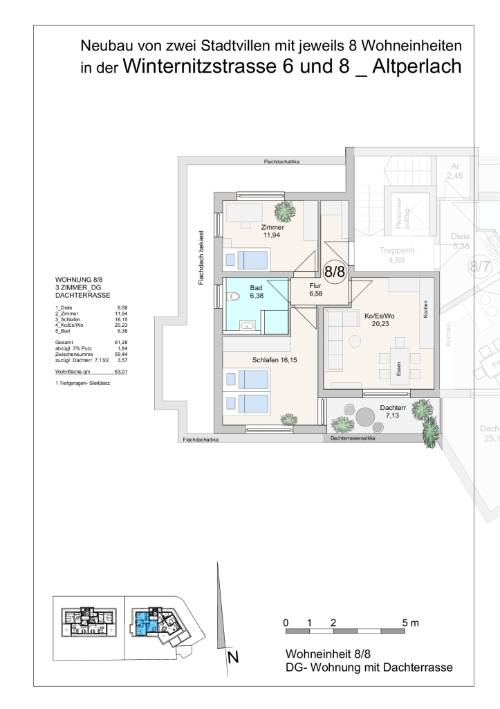
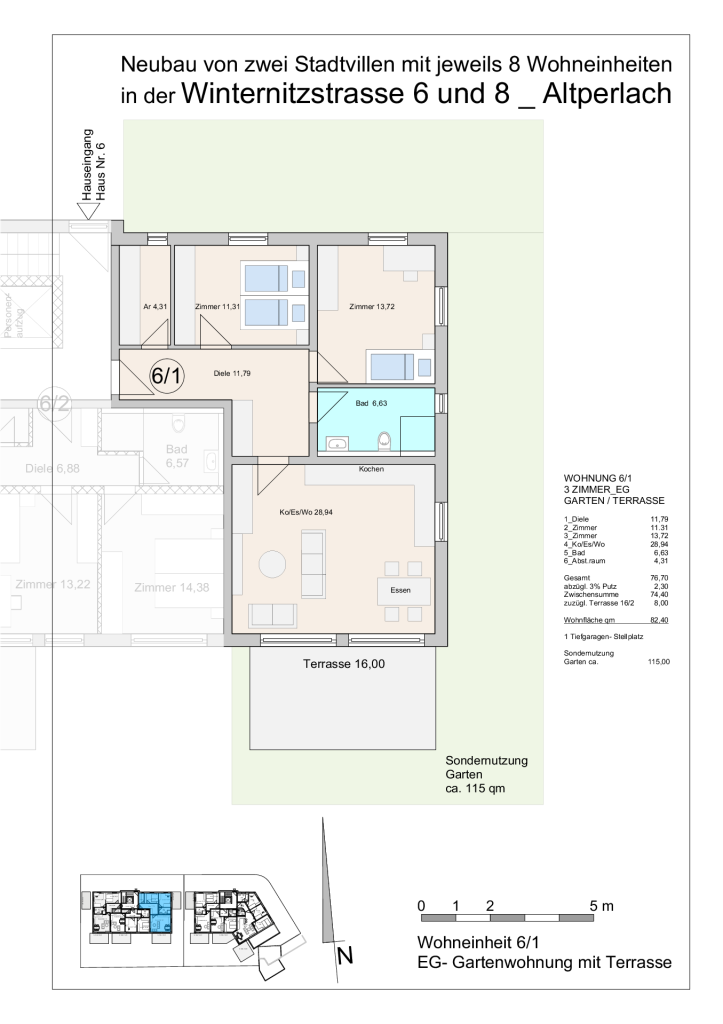
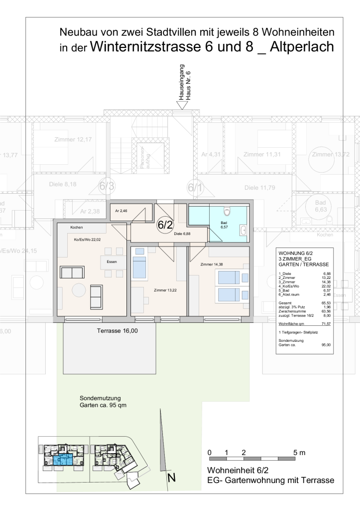
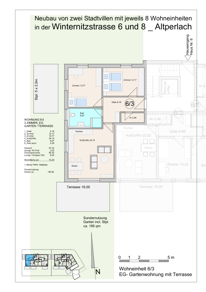
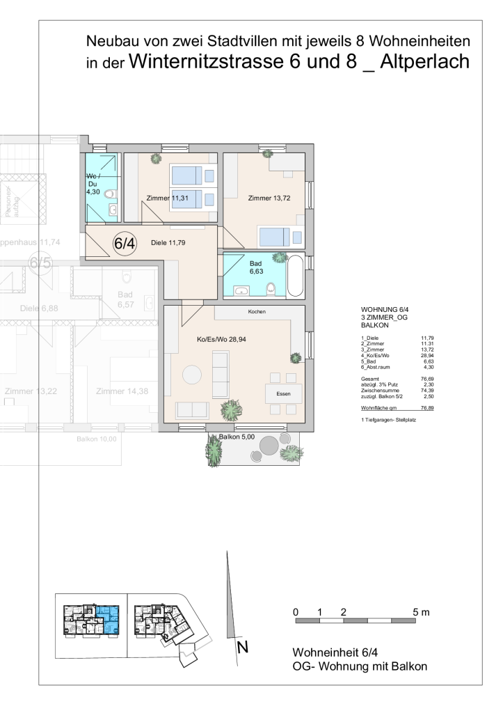
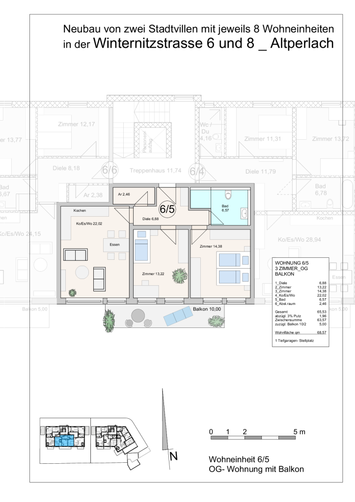
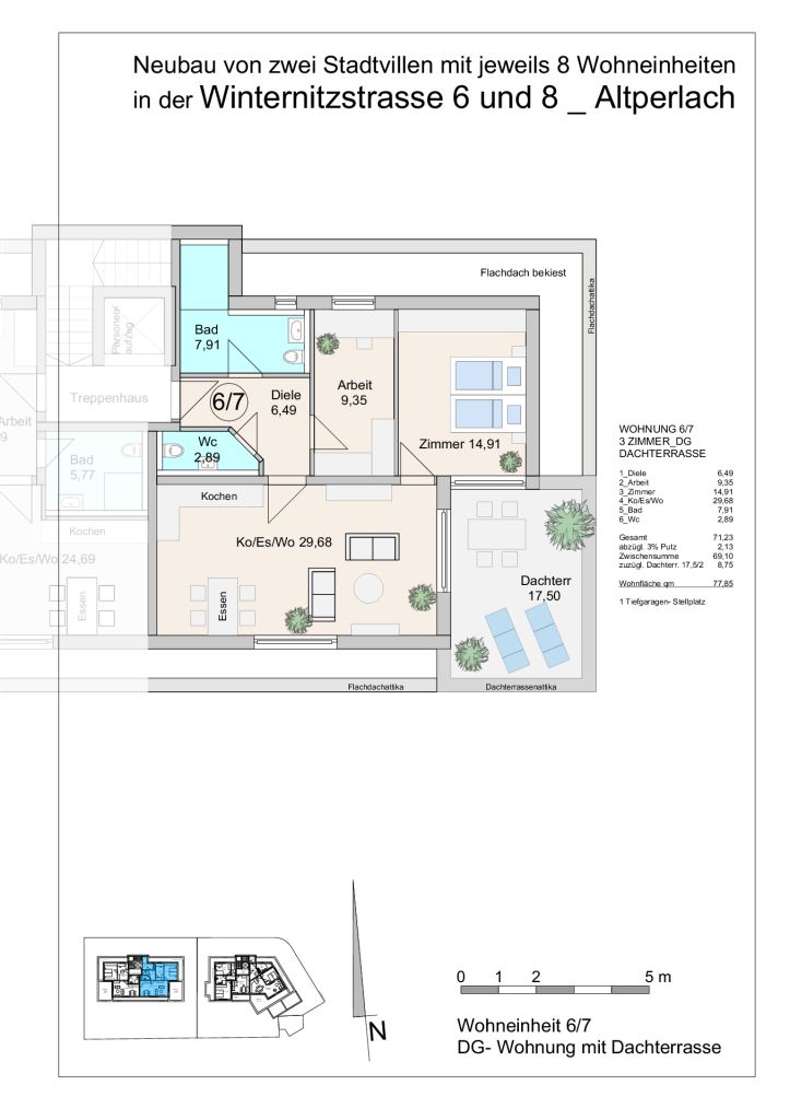
In der Winternitzstrasse 6 und 8 baut die W&H Immo GmbH im bewährten Team mit ausgesuchten, regionalen Handwerksbetrieben zwei moderne Mehrfamilienhäuser mit Tiefgarage. Es entstehen insgesamt 16 barrierefreie Wohnungen mit Gartenanteilen, Balkonen oder Dachterrassen in verschiedenen Größen.
winternitzstrasse Nr. 8
winternitzstrasse Nr. 6
















